HOME DESIGN

Design Homeplan : $ Title

Modern 501

บ้านสไตล์ modern ขนาดใหญ่อีกหนึ่งหลัง ที่มาพร้อมกับ public garden กลางบ้าน และสระน้ำขนาดเล็กหน้าบ้าน โดดเด่นด้วยจำนวนห้องนอนถึง 5 ห้อง ห้องโฮมเธียเตอร์ ห้องแฟมิลี่ ห้องพระ โถง open space กลางบ้าน และที่จอดรถ ที่รองรับการจอดรถ ถึง 4 คัน

พื้นที่ใช้สอย / Area (m²) : 545.00
จำนวนชั้น / Story : 2
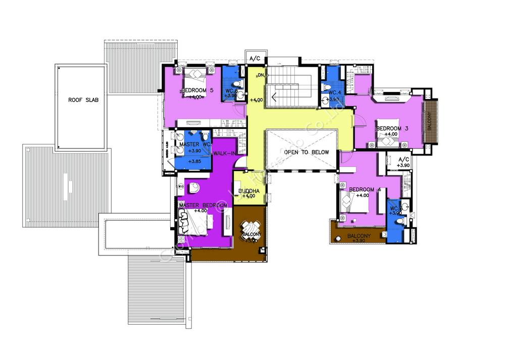
ห้องนอน / Bedroom : 5
ห้องน้ำ / W.C. : 6
ที่จอดรถ / Car Parking : 2
Design Homeplan : $ Title First Floor Plan
Design Homeplan : $ Title Second Floor Plan

ขนาดตัวบ้าน

House Size

28.60 m. X 19.80 m.

ราคาแบบ

Drawing Price

รายละเอียดด้านล่าง

ราคาก่อสร้าง

Construction Cost

11.72 ล้าน ฿

* เริ่มต้น (Start)

รายละเอียดแบบและราคา

แบบร่าง

9000 ฿

แบบร่างผังพื้นทุกชั้น , รูปด้าน 4 ด้าน และ PERSPECTIVE 1-3 มุม (ขึ้นกับแบบ) จำนวน 1 ชุด โดยให้เป็น PAPER และ PDF FILE

แบบขออนุญาต

79500 ฿

แบบพิมพ์เขียว สำหรับขออนุญาต, ขอกู้ธนาคาร และให้ผู้รับเหมาเสนอราคา ประกอบด้วย

  • แบบสถาปัตยกรรม ผัง รูปด้าน รูปตัด และรายละเอียดแบบขยายงานสถาปัตยกรรมแสดงรายละเอียดวัสดุอาคาร และแบบขยายต่างๆ
  • แบบผังวิศวกรรมโครงสร้างพร้อมแบบขยาย, แบบงานไฟฟ้า และสุขาภิบาล
จำนวนท 5 ชุด ชุดละประมาณ 30-60 แผ่น (ขึ้นกับแบบ)

Complete Set

89300 ฿

แบบพิมพ์เขียว สำหรับขออนุญาต, ขอกู้ธนาคาร และให้ผู้รับเหมาเสนอราคา ประกอบด้วย

  • แบบสถาปัตยกรรม ผัง รูปด้าน รูปตัด และรายละเอียดแบบขยายงานสถาปัตยกรรมแสดงรายละเอียดวัสดุอาคาร และแบบขยายต่างๆ
  • แบบผังวิศวกรรมโครงสร้างพร้อมแบบขยาย, แบบงานไฟฟ้า และสุขาภิบาล
จำนวน 7 ชุด พร้อมลายเซ็นต์รับรองการออกแบบของสถาปนิก และวิศวกร

หมายเหตุ

  • ราคาเฉพาะแบบมาตรฐาน ไม่รวมการปรับแก้ไขแบบ
  • ต้องการปรับแก้ไขแบบกรุณาติดต่อ 02-861-5580 หรือ e-mail: sales@home2do.com ได้ในวันและเวลาทำการ
  • เพิ่มพิมพ์เขียวชุดละ
    800 ฿